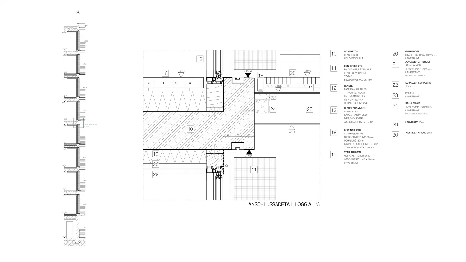
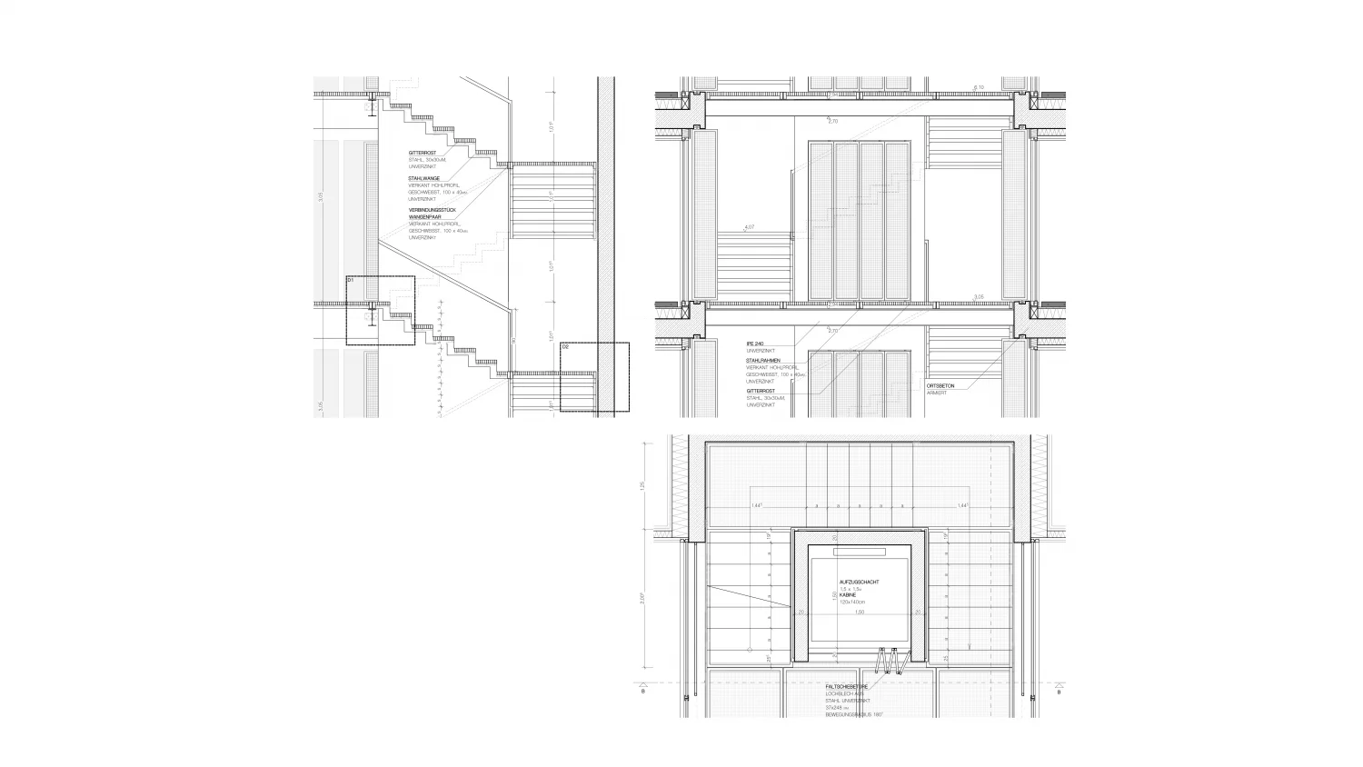
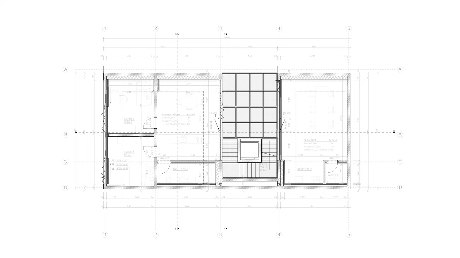
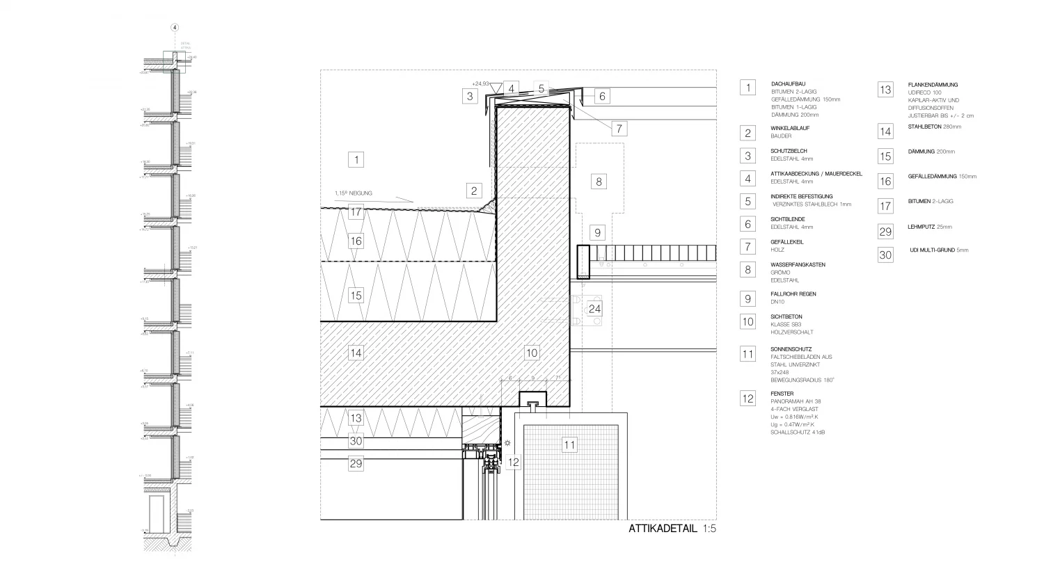
Close
Next
Quattro
2021